Lakefront Luxury Retreat on Candlewood Lake

New Fairfield, Western Connecticut Planning Region, United States View On Map

About this Rental

Lakefront Luxury Retreat on Candlewood Lake Stay in one of the most beautiful homes on Candlewood Lake -- tucked in just beyond the cusp of a cove is our family’s lakefront retreat, with spectacular views across the widest section of the lake. A gently sloping backyard leads to a large dock for swimming and boating.Plenty of room for vacations with your extended family, yet cozy enough for a coupl...

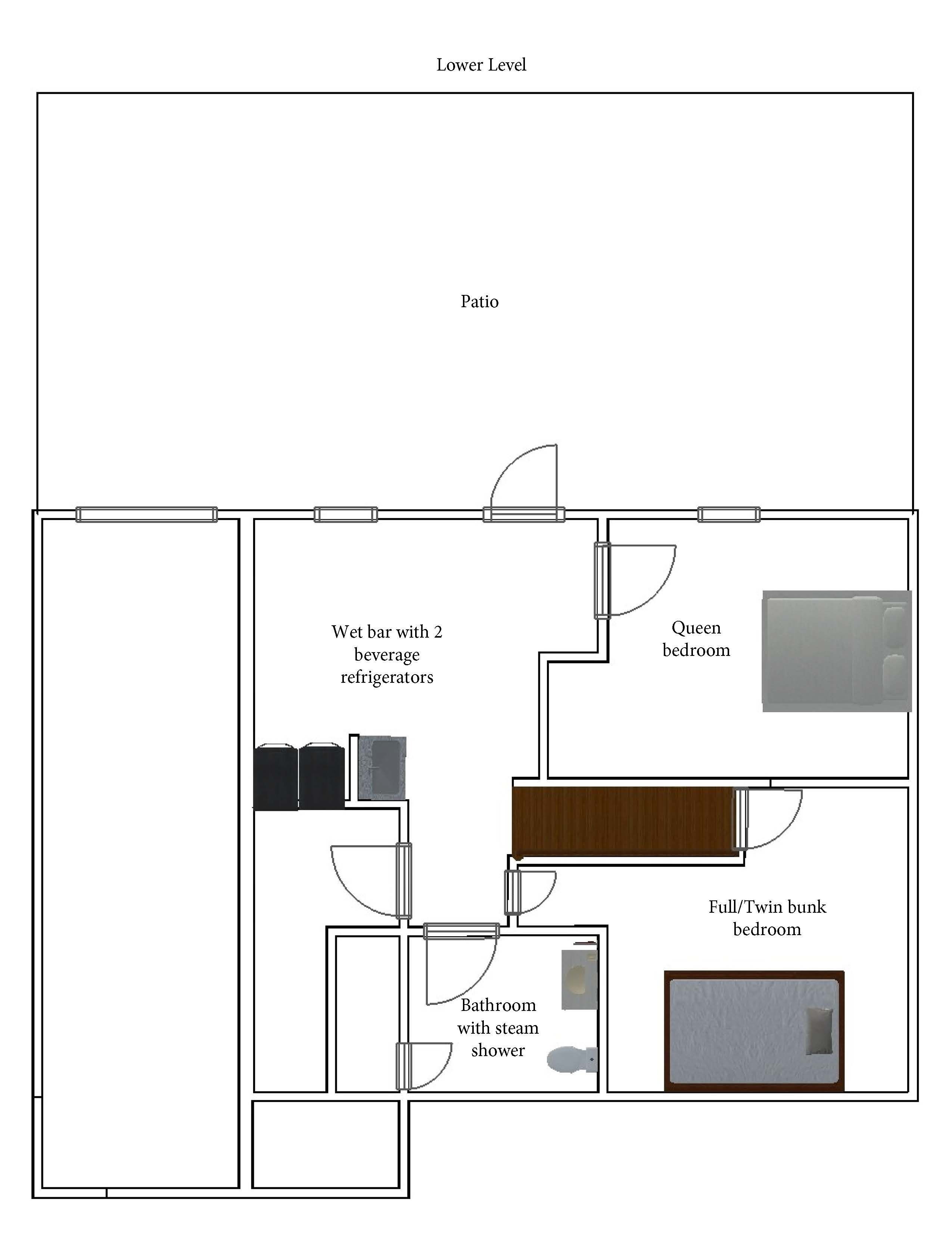
Lakefront Luxury Retreat on Candlewood Lake Stay in one of the most beautiful homes on Candlewood Lake -- tucked in just beyond the cusp of a cove is our family’s lakefront retreat, with spectacular views across the widest section of the lake. A gently sloping backyard leads to a large dock for swimming and boating.Plenty of room for vacations with your extended family, yet cozy enough for a couples retreat, the home has 5 bedrooms plus a nursery off the master suite and can sleep 10-12Lower Level:Two commercial-style refrigerators, wet bar, full bathroom with steam shower, bedroom with full/twin bunk plus an additional bedroom with a queen bed First Floor:Beautiful lakefront living room with gas fireplace and french doors which open to a spacious deckOpen-concept chefs kitchen, gas stove, high-end appliances, plenty of plates and cutlery, breakfast bar and all the kitchen gadgets you could hope forLarge laundry room and half bath Second floor:Queen bedroom with lakefront private balcony and a spiral staircase to the kids' themed bedroom in the crow's nest. Full bathroom directly across the hall400 square foot master bedroom suite with gas fireplace and private lakefront balcony. King bed, beautiful master bath with two person shower, jacuzzi tub, and coffee bar. Nursery off the master suite has a twin bed with a second twin trundle bed, features a full wall size mural. Crib is available upon request.Crow's nest:Underwater themed kids room with two twin beds Additional info:Dining table seats 10 Outdoor - Bar, firepit, huge 8-burner gas grill, gently sloping private backyard with 125 feet of lakefront, seating, large dock and wide steps down into the lake for swimming Local marinas offer boat rentals or you could bring your own with a public boat launch minutes away. Central air conditioning, linens and bath towels provided, Free WiFi Crib, highchair, baby safety-gates, diaper genie, all available complimentary upon request Life vests, canoe, and kayak on-siteSeparate garage contains a game room with big screen tv, air hockey, head-to-head basketball, game table with 60 classic arcade games, poker table with cards and chips, bumper pool, magnetic darts and an upstairs billiard room. Both levels of the garage have heat and air conditioning.There are many local stores, restaurants, and adventures to explore.You could take a pleasant boat ride to the Down the Hatch restaurant with its boat slips .6 mile from Squantz Pond State Park and its public boat launch, beach, and hiking trails .5 mile to 440 Line bar and grill with indoor and outdoor seating, and backyard bocce A short seven minute drive to the town of New Fairfield for shopping, dining, ice cream, liquor stores, and more 10 minutes to the American Pie restaurant and its delicious homemade selections. Awesome breakfasts!

See more

Popular amenities

Essentials

  • Wireless internet
  • Internet
  • Towels provided
  • Linens provided
  • Air conditioning
  • Hair dryer
  • Toilet paper
  • Paper towels
  • Basic soaps
  • Heating
  • Fireplace
See more

Kitchen

  • Kitchen
  • Refrigerator
  • Dishwasher
  • Microwave
  • Stove
  • Oven
  • Grill
  • Dishes & utensils
  • Coffee maker
  • Kettle
  • Blender
  • Ice maker
  • Toaster
  • Lobster pot
See more

Outside

  • Fire pit
  • Outdoor furniture
  • Beach chairs
  • Beach towels
  • Kayak / canoe
  • Water sports gear
See more

Entertainment

  • Games
  • Books
  • Television
  • Satellite / cable
  • Video games
  • Game room
  • Pool table
See more

Laundry

  • Washing machine
  • Clothes dryer
  • Iron & board

Parking

  • Parking

Safety

  • Carbon monoxide detector (host has indicated there is a carbon monoxide detector on the property)
  • Smoke detector (host has indicated there is a smoke detector on the property)
  • Deadbolt lock
  • Fire extinguisher
  • First aid kit
  • Exterior lighting
  • Hospital contact
  • Police contact
See more

Location type

  • Waterfront
  • Lake
  • Lake view

Nearby activities

  • Swimming
  • Water sports
  • Sailing
  • Water skiing
  • Water tubing
  • Jet skiing
  • Boating
  • Kayaking
  • Hiking
  • Wildlife viewing
  • Fishing
  • Marina
See more

Suitability

  • Minimum age limit for renters

Property Amenities

Top family friendly amenities
  • Toys/games
  • Kitchen
  • Living/dining area
  • Game room
  • Microwave
Popular amenities
  • Washer
  • Parking available
  • Outdoor space
  • Fireplace
  • Lake view
  • Hot tub
  • Barbecue grill
  • Air conditioning
  • Dryer

Property Details

House Rules
  • Check-in: After 4:00 PM
  • Minimum age to rent: 30
  • Check-out: Before 11:00 AM
  • Children allowed: ages 0–17
  • Events allowed: No
  • Pets allowed: No
  • Smoking allowed: Smoking is not permitted
Important Information
  • This property is managed by a private host (a party not acting within their trade, business or profession). EU consumer law, including the right of withdrawal, will not apply to your booking. The cancellation policy set by the private host will cover your booking.
  • Extra-person charges may apply and vary depending on property policy
  • Government-issued photo identification and a credit card, debit card or cash deposit may be required at check-in for incidental charges
  • Special requests are subject to availability upon check-in and may incur additional charges; special requests cannot be guaranteed
  • On-site parties or group events are strictly prohibited
  • Host has indicated that there is a carbon monoxide detector on the property
  • Host has indicated that there is a smoke detector on the property
  • Safety features at this property include a fire extinguisher, a first aid kit and a deadlock
About the area
New Fairfield

Located in New Fairfield, this holiday home is on the waterfront. Squantz Pond State Park and Bear Mountain Reservation reflect the area's natural beauty and area attractions include Richter Arts Center and The Cave. Travelling with kids? Consider Ives Concert Park, or check out an event or a game at Danbury Ice Arena. Discover the area's water adventures with jet skiing, kayaking and waterskiing nearby, or enjoy the great outdoors with hiking.

Nearby locations
  • Candlewood Lake 1 min walk
  • Squantz Pond State Park 12 min walk
  • Danbury Fair Mall 19 min drive
  • Thunder Ridge Ski Resort 25 min drive
  • Elephant's Trunk Flea Market 27 min drive
Getting around
  • Appalachian Trail 28 min drive
  • Danbury, CT (DXR-Danbury Municipal) 27 min drive
Restaurants
  • Chipotle Mexican Grill 25 min drive
  • Fast Eddies Billiards Cafe 26 min drive
  • Taco Bell 24 min drive
  • Rein Osteria 9 min drive
  • Biscotti's Ristorante 7 min drive
Frequently Asked Questions

Is Lakefront Luxury Retreat on Candlewood Lake pet-friendly?

No, pets are not allowed at this property.

What time is check-in at Lakefront Luxury Retreat on Candlewood Lake?

Check-in begins at 4:00 PM.

What time is check-out at Lakefront Luxury Retreat on Candlewood Lake?

Checkout is at 11:00 AM.

Where is Lakefront Luxury Retreat on Candlewood Lake located?

This family-friendly New Fairfield holiday home is located on the waterfront, within a 15-minute walk of Candlewood Lake and Squantz Pond State Park. Richter Arts Center and Hatters Park are also within 9 miles (15 km).